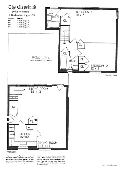
The ClevelandSquare Feet: 1060Bedrooms: 2Bathrooms: 2Floors: 2FY 2026 - Monthly Condo Fees: $714.22Show all floorplans View fullsize